绵阳修房子设计重不重要?设计要不要单独收费?
2022-09-15原来在农村修房子,我们都是直接找好施工队,大概画一个草图就进行施工。因此大家对房屋的设计没有太多的重视和要求。因此经常会出现修建中途又进行改动,或者房屋修好后觉得有不合理的地方,留下些许遗憾。
如今我们对房子的要求越来越高,不仅要修外形要美观,户型也要尽量满足我们的使用习惯和要求。在这样的前提下房屋的前期设计就显得十分重要。
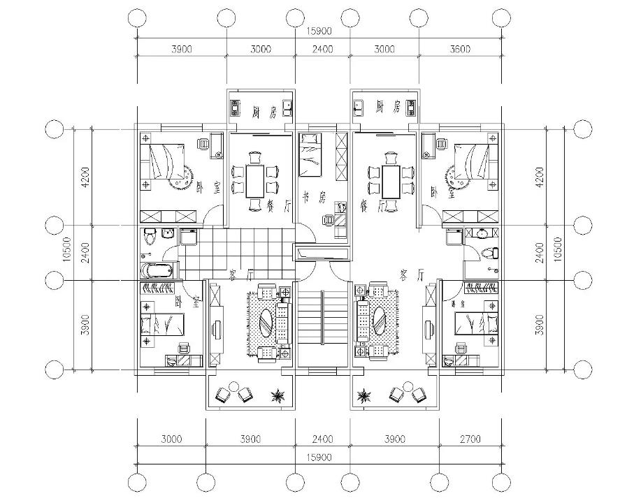
合理的设计能够让我们提前了解房屋的外观造型,室内布局。根据我们的喜好先画好图纸,我们可以根据图纸了解到房屋的具体布局,哪里合理,哪里不合理可以调整好。也就是说我们在房子还没有动工之前,就已经能够知道房子的造型,配色以及室内的户型。
好的设计不仅能够满足我们的使用要求,还能够让我们使用方便,更能够通过合理的布局达到既节约成本又满足我们使用要求的效果。
更重要的是,通过设计图纸还能够看到我们的房屋的结构有没有不合理的地方,保证我们的房屋结构安全,尤其是一些布局和结构相对复杂的房屋中,不会留下安全隐患。
那么设计要不要收费呢?就拿最近几年在绵阳比较火的轻钢别墅来说,如果我们找到轻钢别墅厂家为我们修房子,那么设计费用是包含在我们南充轻钢别墅的建房服务里面一起的,我们不用在单独支付设计费用。
当然如果我们仅仅是只需要设计图纸,那么就需要支付设计费用。在设计方面厂家都会根据我们的具体需求,为我们量身设计房子,直到我们满意为止。
随着大家的审美越来越高,老家修房子的设计也就显得越来越重要,提前做好设计能够让我们少留遗憾,许多细节问题能够通过前期的设计得到解决,并且能够通过合理的设计达到节约建房成本的需求。因此房子的设计十分重要。

如今我们对房子的要求越来越高,不仅要修外形要美观,户型也要尽量满足我们的使用习惯和要求。在这样的前提下房屋的前期设计就显得十分重要。

合理的设计能够让我们提前了解房屋的外观造型,室内布局。根据我们的喜好先画好图纸,我们可以根据图纸了解到房屋的具体布局,哪里合理,哪里不合理可以调整好。也就是说我们在房子还没有动工之前,就已经能够知道房子的造型,配色以及室内的户型。

好的设计不仅能够满足我们的使用要求,还能够让我们使用方便,更能够通过合理的布局达到既节约成本又满足我们使用要求的效果。

更重要的是,通过设计图纸还能够看到我们的房屋的结构有没有不合理的地方,保证我们的房屋结构安全,尤其是一些布局和结构相对复杂的房屋中,不会留下安全隐患。

那么设计要不要收费呢?就拿最近几年在绵阳比较火的轻钢别墅来说,如果我们找到轻钢别墅厂家为我们修房子,那么设计费用是包含在我们南充轻钢别墅的建房服务里面一起的,我们不用在单独支付设计费用。

当然如果我们仅仅是只需要设计图纸,那么就需要支付设计费用。在设计方面厂家都会根据我们的具体需求,为我们量身设计房子,直到我们满意为止。

随着大家的审美越来越高,老家修房子的设计也就显得越来越重要,提前做好设计能够让我们少留遗憾,许多细节问题能够通过前期的设计得到解决,并且能够通过合理的设计达到节约建房成本的需求。因此房子的设计十分重要。