2022年必火的绵阳轻钢别墅,要建房的朋友看过来!
2022-01-21最近几年随着农村政策的不断利好,农村的生存方式也越来越多,许多农村朋友们都开始在老家建起了新房。绵阳轻钢别墅作为一种新兴的建筑形式,也受到越来越多建房者的青睐。
今天为大家推荐的一款轻钢别墅,是2022年必火的新款造型,要建房的朋友可以关注!
从效果图可以看出,这套绵阳轻钢别墅是欧式风格的设计,从外观造型来说一楼右侧突出,搭配入户门厅,二楼从左至右呈递进式设计,二楼空出了大小两个露台。最右边加顶,作为休闲阳台。
整个房子不管造型丰富,层次分明,屋顶的造型与二楼一致,为全斜屋面,搭配老虎窗造型。使这栋绵阳轻钢别墅的造型更加精致而不单调。
而外观配色方面,这栋绵阳轻钢别墅的外观采用了深浅两种颜色搭配,一楼棕色,二楼是欧式惯用的米色,棕色搭配文化石墙裙,既能防污,也能增加房屋颜色上的层次。
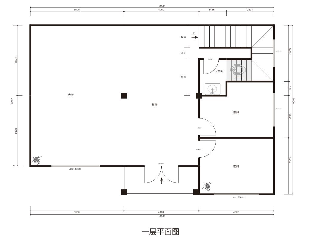
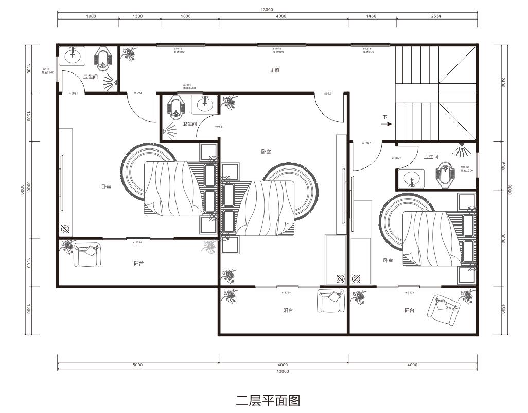
从布局来说,由于房主后期想做农家乐,所以一楼设置一个宽大的大厅,和两个包间加厨房。二楼主要为卧室和卫生间,每个房间配有单独的阳台,非常惬意。
整个绵阳轻钢别墅不管是做农家乐还是自家居住,都十分的实用,如果有朋友喜欢这个造型,绵阳轻钢别墅厂家可以根据你们自身的使用习惯和喜好进行更改哟!
今天为大家推荐的一款轻钢别墅,是2022年必火的新款造型,要建房的朋友可以关注!

从效果图可以看出,这套绵阳轻钢别墅是欧式风格的设计,从外观造型来说一楼右侧突出,搭配入户门厅,二楼从左至右呈递进式设计,二楼空出了大小两个露台。最右边加顶,作为休闲阳台。

整个房子不管造型丰富,层次分明,屋顶的造型与二楼一致,为全斜屋面,搭配老虎窗造型。使这栋绵阳轻钢别墅的造型更加精致而不单调。

而外观配色方面,这栋绵阳轻钢别墅的外观采用了深浅两种颜色搭配,一楼棕色,二楼是欧式惯用的米色,棕色搭配文化石墙裙,既能防污,也能增加房屋颜色上的层次。

从布局来说,由于房主后期想做农家乐,所以一楼设置一个宽大的大厅,和两个包间加厨房。二楼主要为卧室和卫生间,每个房间配有单独的阳台,非常惬意。

整个绵阳轻钢别墅不管是做农家乐还是自家居住,都十分的实用,如果有朋友喜欢这个造型,绵阳轻钢别墅厂家可以根据你们自身的使用习惯和喜好进行更改哟!