喜欢中式风格的朋友看过来,这栋中式绵阳轻钢别墅已成爆款!
2022-01-20随着建筑及装饰材料的不断创新,房屋的风格也多种多样,有欧式、美式、田园、地中海,新中式等等。在绵阳轻钢别墅的推广过程中,有一部分朋友却独爱我们古朴的中式风格别墅。今天为大家推荐的这款,就是一款纯中式的轻钢别墅。
这栋中式的绵阳轻钢别墅,从外观来看其造型比较规则,是中式常有的对称设计,造型不像欧式美式风格那样夸张和复杂,反而比较简单。
其主要的造型主要体现在屋顶上,另外为了让这栋绵阳轻钢别墅的外观更显精致,轻钢别墅厂家在设计时在一楼部分也加入了装饰的屋檐设计,是整栋别墅看上去更加的层次分明。
从配色上来说,这栋中式风格的轻钢别墅主要采用中式惯用的白灰配色,这样的配色让房屋显得大气而低调,符合中式风格的定位,屋顶采用深灰色的仿古瓦,彰显中式风格的格调。
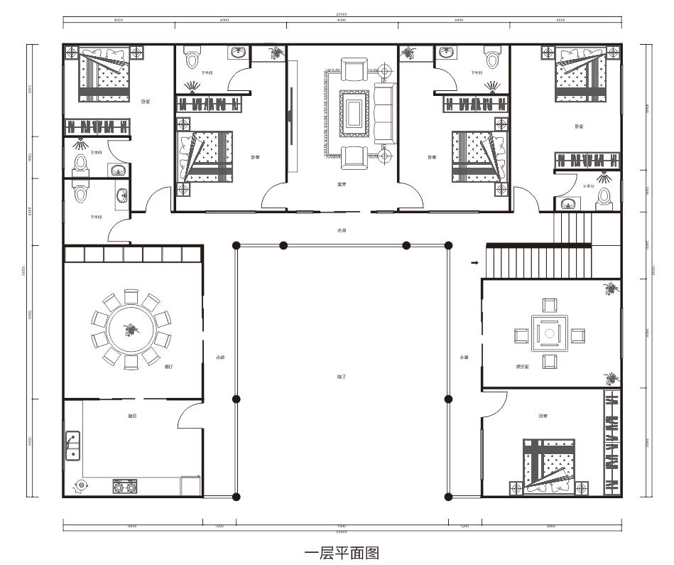
从室内布局来说,由于面积较大,因此设计空间设计比较宽松和规则,一楼设置常有的厨房,卧室,堂屋,卫生间等功能区域外,还设置了休闲区。二楼的布局和一楼对应,只是在左右各设置了一个露台,这个设计不仅为房屋的造型增加了色彩,也增加了房屋的实用性。此外每个房间基本都配有卫生间,为我们居住提供了方便,也可以打造成民宿,非常方便。
房屋的风格千变万化,但是许多人对中式风格始终情有独钟,或许是中式风格的低调和耐看,无论多久终不过时。这栋中式风格的绵阳轻钢别墅面积和室内布局都可以根据每个家庭的需求进行设计。

这栋中式的绵阳轻钢别墅,从外观来看其造型比较规则,是中式常有的对称设计,造型不像欧式美式风格那样夸张和复杂,反而比较简单。

其主要的造型主要体现在屋顶上,另外为了让这栋绵阳轻钢别墅的外观更显精致,轻钢别墅厂家在设计时在一楼部分也加入了装饰的屋檐设计,是整栋别墅看上去更加的层次分明。

从配色上来说,这栋中式风格的轻钢别墅主要采用中式惯用的白灰配色,这样的配色让房屋显得大气而低调,符合中式风格的定位,屋顶采用深灰色的仿古瓦,彰显中式风格的格调。

从室内布局来说,由于面积较大,因此设计空间设计比较宽松和规则,一楼设置常有的厨房,卧室,堂屋,卫生间等功能区域外,还设置了休闲区。二楼的布局和一楼对应,只是在左右各设置了一个露台,这个设计不仅为房屋的造型增加了色彩,也增加了房屋的实用性。此外每个房间基本都配有卫生间,为我们居住提供了方便,也可以打造成民宿,非常方便。

房屋的风格千变万化,但是许多人对中式风格始终情有独钟,或许是中式风格的低调和耐看,无论多久终不过时。这栋中式风格的绵阳轻钢别墅面积和室内布局都可以根据每个家庭的需求进行设计。