造型美观大气,这套绵阳轻钢别墅是你喜欢的吗?
2022-01-19最近几年在农村建房子的朋友们越来越多,与之前不同的是现在大家建房子都喜欢追求个性,外形美观、居住舒适,安全性高是大家追求的方向。今天为大家推荐的这套绵阳轻钢别墅造型美观大气,看看是你喜欢的吗?来看看效果图。
绵阳轻别墅厂家在前期和业主沟通的时候,业主要求房屋的造型要比较特别,但不要太夸张,并且在有限的面积里面尽量的多设计一些房间。也和业主的要求,设计师在设计这套房屋的外观时,房屋的前面设计了一个走廊,走廊能够兼具外观和实用。走廊的屋檐与房屋腰线处一并设计了一圈装饰性的檐口,这样房屋的造型更加有层次。
这栋绵阳轻钢别墅的左边突出,与走廊对其,二楼右边设计八角窗造型,这样房屋的造型更加丰富,八角窗的设计让屋顶造型也不那么平淡,而显得十分的个性。
针对业主要求造型和色彩上不要太夸张,因此在外观配色时选择的比较低调的米色真石漆。并且整体颜色一致,没有跳跃,搭配蓝色屋顶后,整个绵阳轻钢别墅的外观显得个性而不夸张,十分的低调沉稳。
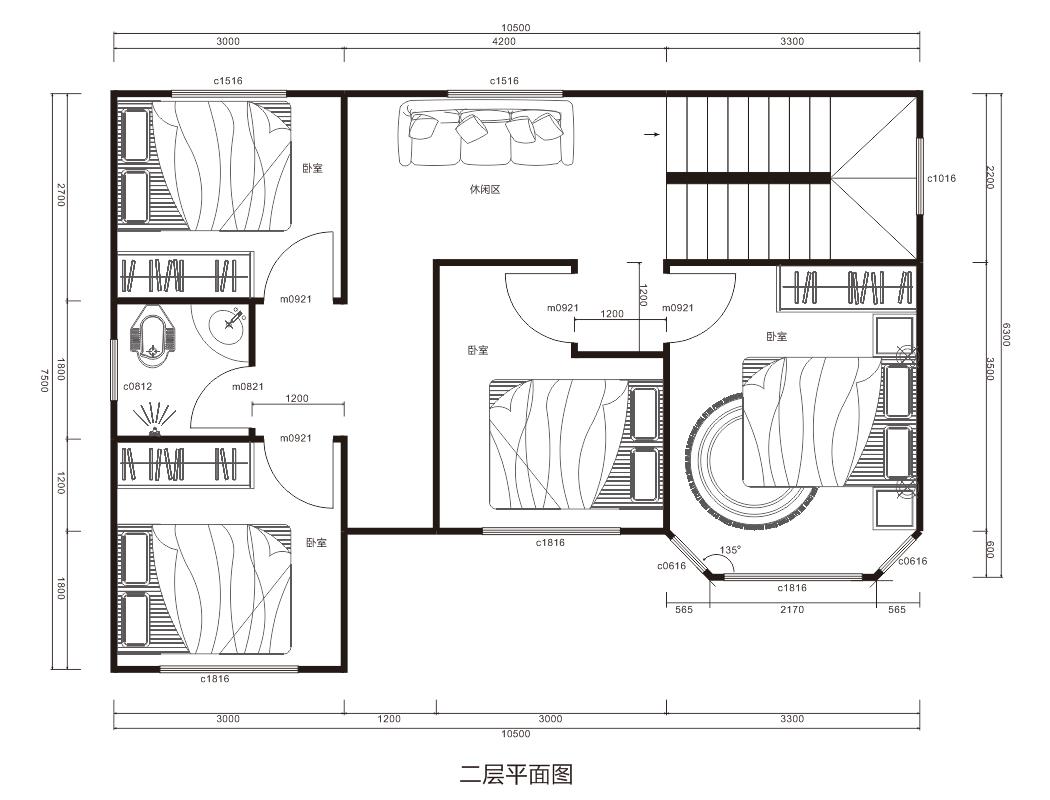
从这栋绵阳轻钢别墅的布局来看,因为要尽量多的设计房间,因此房屋的整体造型还是比较规则,呈方形布局,一楼设置两室两厅,一厨一卫。二楼设置四个卧室加一个卫生间,并没有设置露台。布局合理,空间利用率高。
这是完工后的照片,绵阳轻钢别墅在农村正在被越来越多的人接受,许多人建房都考虑这种新型房屋,而绵阳轻钢别墅价格也并不是想象的那么高,造型美观,结构安全,专人设计施工,这正是其发展迅速的原因。

绵阳轻别墅厂家在前期和业主沟通的时候,业主要求房屋的造型要比较特别,但不要太夸张,并且在有限的面积里面尽量的多设计一些房间。也和业主的要求,设计师在设计这套房屋的外观时,房屋的前面设计了一个走廊,走廊能够兼具外观和实用。走廊的屋檐与房屋腰线处一并设计了一圈装饰性的檐口,这样房屋的造型更加有层次。

这栋绵阳轻钢别墅的左边突出,与走廊对其,二楼右边设计八角窗造型,这样房屋的造型更加丰富,八角窗的设计让屋顶造型也不那么平淡,而显得十分的个性。

针对业主要求造型和色彩上不要太夸张,因此在外观配色时选择的比较低调的米色真石漆。并且整体颜色一致,没有跳跃,搭配蓝色屋顶后,整个绵阳轻钢别墅的外观显得个性而不夸张,十分的低调沉稳。

从这栋绵阳轻钢别墅的布局来看,因为要尽量多的设计房间,因此房屋的整体造型还是比较规则,呈方形布局,一楼设置两室两厅,一厨一卫。二楼设置四个卧室加一个卫生间,并没有设置露台。布局合理,空间利用率高。

这是完工后的照片,绵阳轻钢别墅在农村正在被越来越多的人接受,许多人建房都考虑这种新型房屋,而绵阳轻钢别墅价格也并不是想象的那么高,造型美观,结构安全,专人设计施工,这正是其发展迅速的原因。