明年必火四川轻钢别墅推荐,是你喜欢的吗?
2021-12-27大家应该都有这样的感觉,原来我们农村建的房子受材料和工艺的限制,造型和室内的布局都相对普通。如今农村的朋友们建房子越来越多的最求房屋的外形美观度和实用性,今天就给大家推荐一套漂亮的四川轻钢别墅,看看是不是你喜欢的呢?
从这套四川轻钢别墅的外形来看,其外观造型相对比较复杂,给人的感觉比较有层次感。一楼的走廊右边根据突出的八角窗延伸出的造型相当抢眼。走廊的设计兼具了美观和实用,让房屋看上去外观更加的丰富。
而八角窗的设计使整个房屋的外观更有设计感,这套四川轻钢别墅的屋顶根据八角窗的造型,加入了老虎窗的点缀,看上去也比较漂亮和突显层次。房子的外观颜色采用双色搭配,上浅下深,这样不仅让外观看上去更加的突显,并且提升了房屋的层次感。
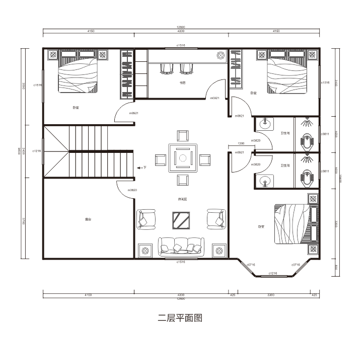
从布局上来说,这栋四川轻钢别墅开间12.6米,进深11.1米,一楼布置客厅、卧室和厨卫,楼梯下方的空间利用为储物间。二楼则布置房间休闲区和露台,整个房子的空间利用率很高,兼具实用和美观。
如今四川轻钢别墅在广大农村越来越火,许多人建房都选择这种新型的轻钢别墅,毕竟外形美观加之这种轻钢别墅价格也实惠。今天这套房子是四川轻钢别墅厂家根据客户需要进行的一套设计,如果你也喜欢可以作为参考。

从这套四川轻钢别墅的外形来看,其外观造型相对比较复杂,给人的感觉比较有层次感。一楼的走廊右边根据突出的八角窗延伸出的造型相当抢眼。走廊的设计兼具了美观和实用,让房屋看上去外观更加的丰富。

而八角窗的设计使整个房屋的外观更有设计感,这套四川轻钢别墅的屋顶根据八角窗的造型,加入了老虎窗的点缀,看上去也比较漂亮和突显层次。房子的外观颜色采用双色搭配,上浅下深,这样不仅让外观看上去更加的突显,并且提升了房屋的层次感。

从布局上来说,这栋四川轻钢别墅开间12.6米,进深11.1米,一楼布置客厅、卧室和厨卫,楼梯下方的空间利用为储物间。二楼则布置房间休闲区和露台,整个房子的空间利用率很高,兼具实用和美观。

如今四川轻钢别墅在广大农村越来越火,许多人建房都选择这种新型的轻钢别墅,毕竟外形美观加之这种轻钢别墅价格也实惠。今天这套房子是四川轻钢别墅厂家根据客户需要进行的一套设计,如果你也喜欢可以作为参考。